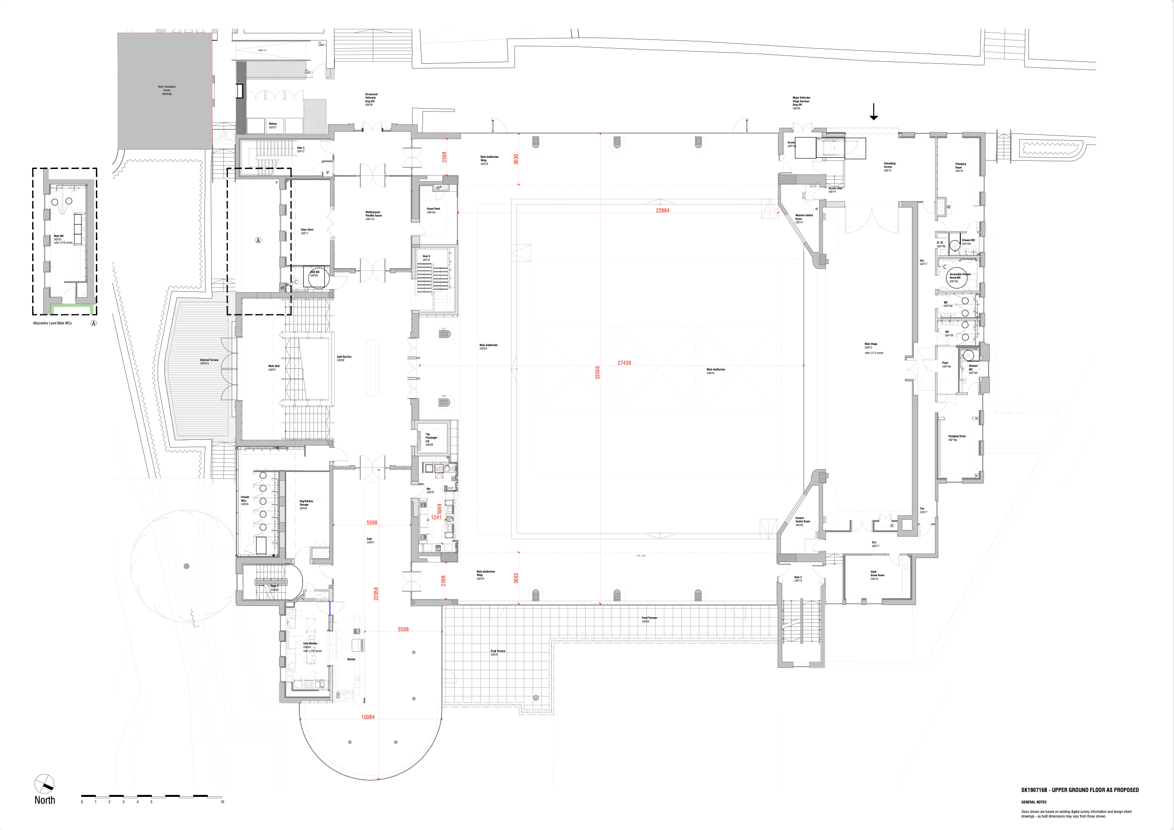
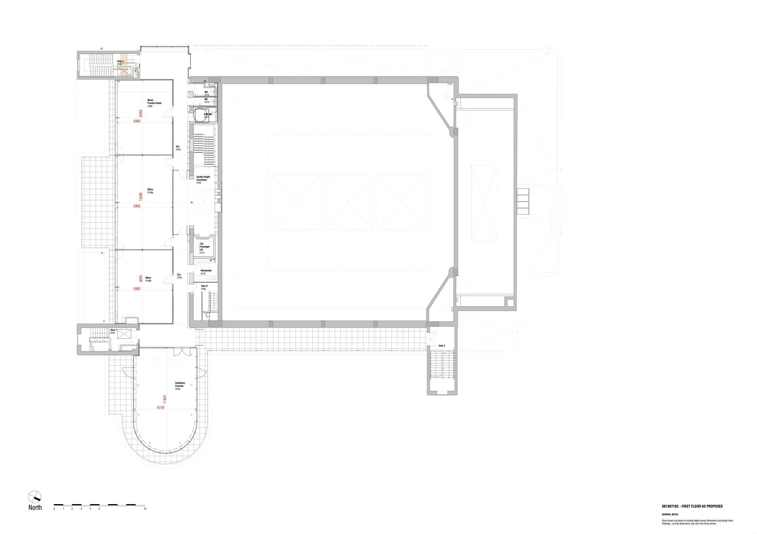
Pavilion Floor Plans

Click on an image to access the detailed PDF

LOWER GROUND FLOOR

FIRST FLOOR

UPPER GROUND FLOOR

CARETAKER’S HOUSE